Sold

Barndominium With Acreage And Creek In Friendship NY

Acreage

42.5 ±

County

Allegany

SOLD

Address 6381 County Road 20, Lot#WP001 Friendship, NY 14739

View on Google Maps

Description

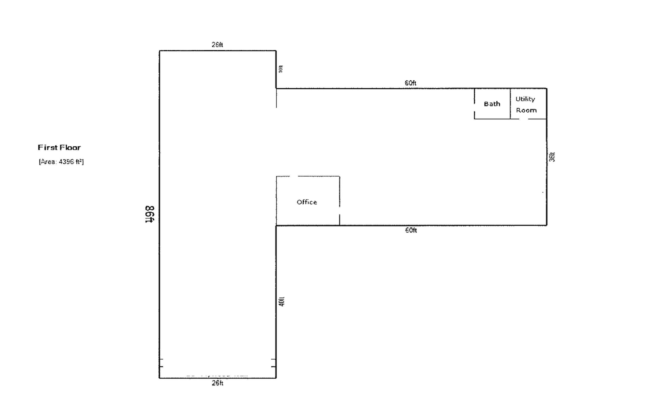
We are pleased to present an opportunity to own your barndominium style home on a beautiful tract of land in Friendship, NY. Unique to this opportunity is that it is nestled in the country just off of the I-86 southern tier expressway within easy commutes from the larger centers of Buffalo, Rochester, Batavia and Olean. This property is a private retreat in a park like setting with paths and space to enjoy the outdoor lifestyle. The landscape of the property is a beautiful level lot next to the Van Camp Creek meandering through the property, offering a scenic view of your land and bordering hills. The approach to the property opens up from County Route 20 to a large 1.7-acre area yard. Approximately a half-acre is available for parking if you have a lot of vehicles or large vehicles. Inside the home the main entrance footprint is 2,160 sqft with high 12-foot-tall ceilings adding to the volume and welcome atmosphere for the barndominium experience. The second half is 2,232 sqft with a 10-foot tall ceiling, and easily large enough for a garage or shop attached to your home. With 42.45 acres there is also a potential opportunity to subdivide the property for more homes or outbuildings. The east portion of the property is approximately eight acres and could easily be split from the main 42.5 acres for a building lot for a dream home with 360 feet of road frontage. The total road frontage is 765 feet +/-. This is a great opportunity for you to convert this beautiful property and business location into a spectacular country living escape with your own barndominium conversion. Priced well to sell! NOTES: Floor space front room 34' x 59, second room 24' x 60' Lounge 24' x 18' Office 11.7' x 21.7' Bathroom 7.7' x 7' Buildable/conversion lot potential with township approvals. New Furnace Taxes $4,982 (2021) GMO's convey to buyer, Expanded parking on site.

Details

  • Established business
  • Retail floor space 34x59
  • Indoor range 24x60
  • Lounge 24x18
  • Office 11.7x21.7
  • Bathroom 7.7x7
  • 3D range (30 targets)
  • Matthews, Hoyt, Athens, TenPoint Brands
  • Buildable lot
  • New furnace
  • Taxes $4,982 (2021)
  • GMO's convey to buyer
  • Parking on site

Summary

Land Type

Commercial and Development

Property Type

Commercial Land

Land and Farm Property Types

Land - Commercial/Other

Road Frontage

County Road

Road Surface

Blacktop/Asphalt

Outbuildings

Shop

Land Details

Timber

Improvements/Features

Small Game, Big Game, Upland Game, Predators, Creek/Spring, Trail Network, Internal Road System, Seller's Mineral Rights Convey

Other Property Details

Additional Addresses

  • 6381 County Road 20, Lot#WP001, Friendship, NY, 14739
  • 6381 County Road 20, Lot#WP001, Friendship, NY, 14739
Utilities
  • electric: onsite
  • gas: onsite
  • sewer: onsite
  • internet: onsite
  • cable: onsite
  • telephone: onsite
  • water: onsite
Coordinates

42.2223, -78.0963

Annual Taxes

$4,982

Sold Property

For more information or to see additional properties currently for sale see Paul Vaicunas's listings.

Nearby Related Properties


Reduced
$69,900 20.91 acres ±
Allegany County • Friendship, NY 14739
New
$449,900 19.4 acres ±
Allegany County • Friendship, NY 14739
For Sale
$29,900 4.41 acres ±
Allegany County • Cuba, NY 14727
For Sale
$24,900 3.64 acres ±
Allegany County • Cuba, NY 14727
For Sale
$29,900 4.29 acres ±
Allegany County • Cuba, NY 14727
For Sale
$24,900 3.26 acres ±
Allegany County • Cuba, NY 14727
For Sale
$59,900 16.85 acres ±
Allegany County • Cuba, NY 14727
For Sale
$364,900 104 acres ±
Allegany County • Cuba, NY 14727
Stay Connected

Be Part of a Thriving Land Community!

Get the same expert advice, property strategies, and land management tips that thousands of landowners trust. Subscribe now and stay ahead in the market.